back arrowProjects

Spring Street

Portland, Maine 2021 – 2022

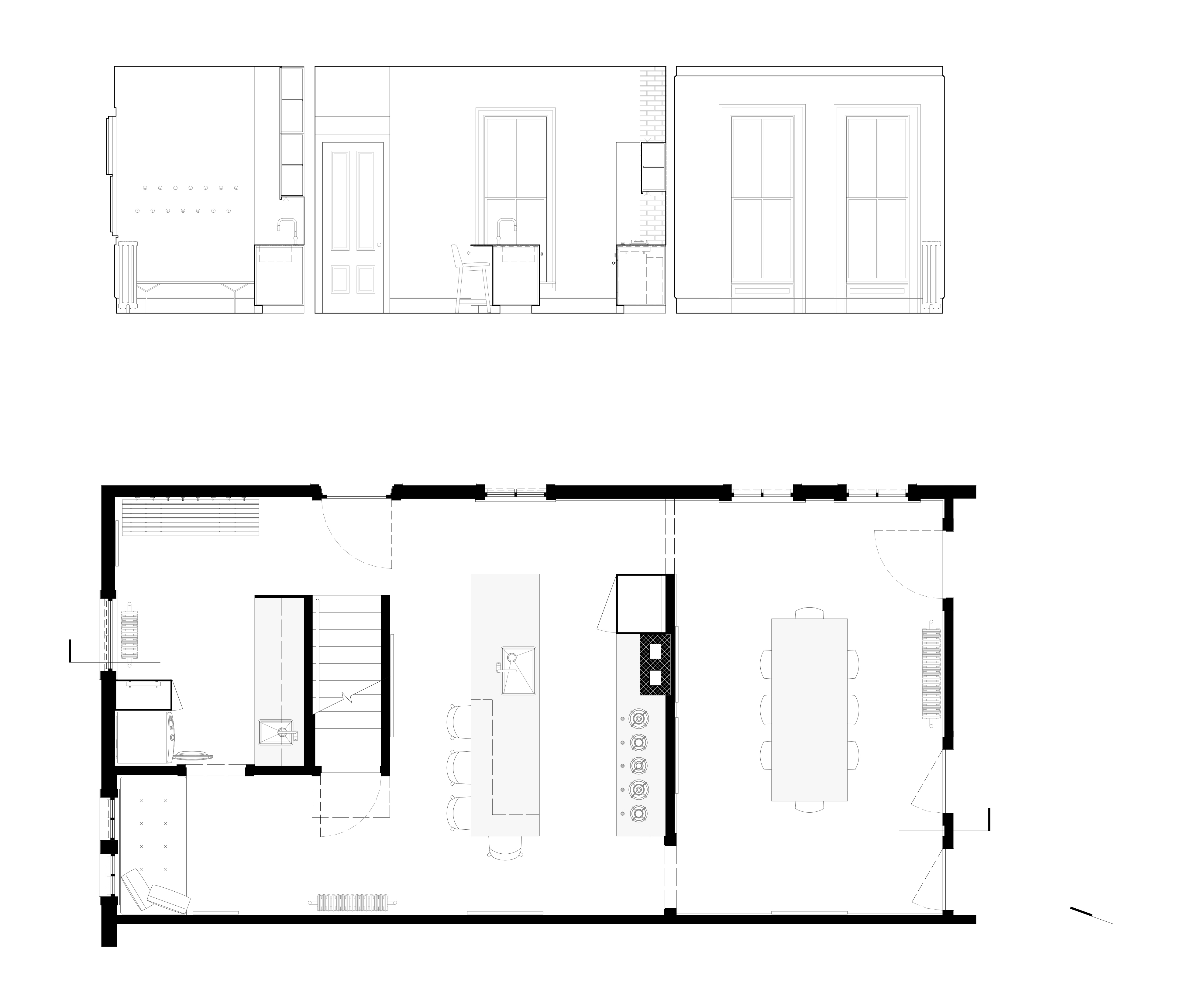
Located in Portland’s West End, reimagined interiors transform and optimize the dining, kitchen, pantry, and routine entry of this historic 1867 house for future years of enjoyment. Stripped of a century’s worth of alterations, the design restores and accentuates original details and natural daylighting within the eleven-foot-high spaces.

While many aspects of the house suited the family's needs, the kitchen and back amenity areas, altered multiple times throughout the past 150-plus years, lacked fundamentals of spatial efficiency and natural daylighting. This resulted in awkward and dead-end circulation, unnecessary and ineffective interior doors and partitions, and dark spaces that were further affected by their location within the duplex's northeast corner. These criticisms formed the underlying basis for the design challenge: produce Boffi-inspired interiors (one of the owners is Italian) that would function well into the future.

The new floor plan removed an excess of interior doors, partitions, and headers while maintaining basic organization around a central stairwell serving the second floor and basement. A new opening was created in the wall between the dining and kitchen spaces, forming a direct circulation path through the house and around the kitchen. All soffits, bump-outs, and areas of dropped ceilings previously built to hide aspects of past alterations were removed. What used to feel like small, cramped spaces now open seamlessly into one another while remaining distinct and purposeful. Natural indirect daylight fills even the deepest interiors thanks to the removals noted, light-toned finishes, and a nine-foot glass entry door that replaced a solid wood door of much shorter height.

Interior detailing was kept to a minimum in order to showcase items true to the original architecture. Ornate cast iron radiators were refurbished and reused. An original brick masonry chimney, previously concealed, now contrasts elegantly with the surrounding modern casework and countertop. In the dining room, architectural millwork and original decorative floors, refinished in white, emphasize a bygone era.

Awards
2024 AIA Maine Citation Award
Structural Engineering
Lincoln/Haney Engineering Associates
General Contractor
Raymond T. Keith Carpentry
Lead Carpenters
Shane Brennan and Hugh Cook
Cabinetry
David A. Fields Cabinetmaker
Photography
©trentbellphotography
back arrow

Projects

Spring Street

 /